본문 바로가기
주메뉴 바로가기
주메뉴
ABOUT
WORKS
NEWS
메뉴
닫기
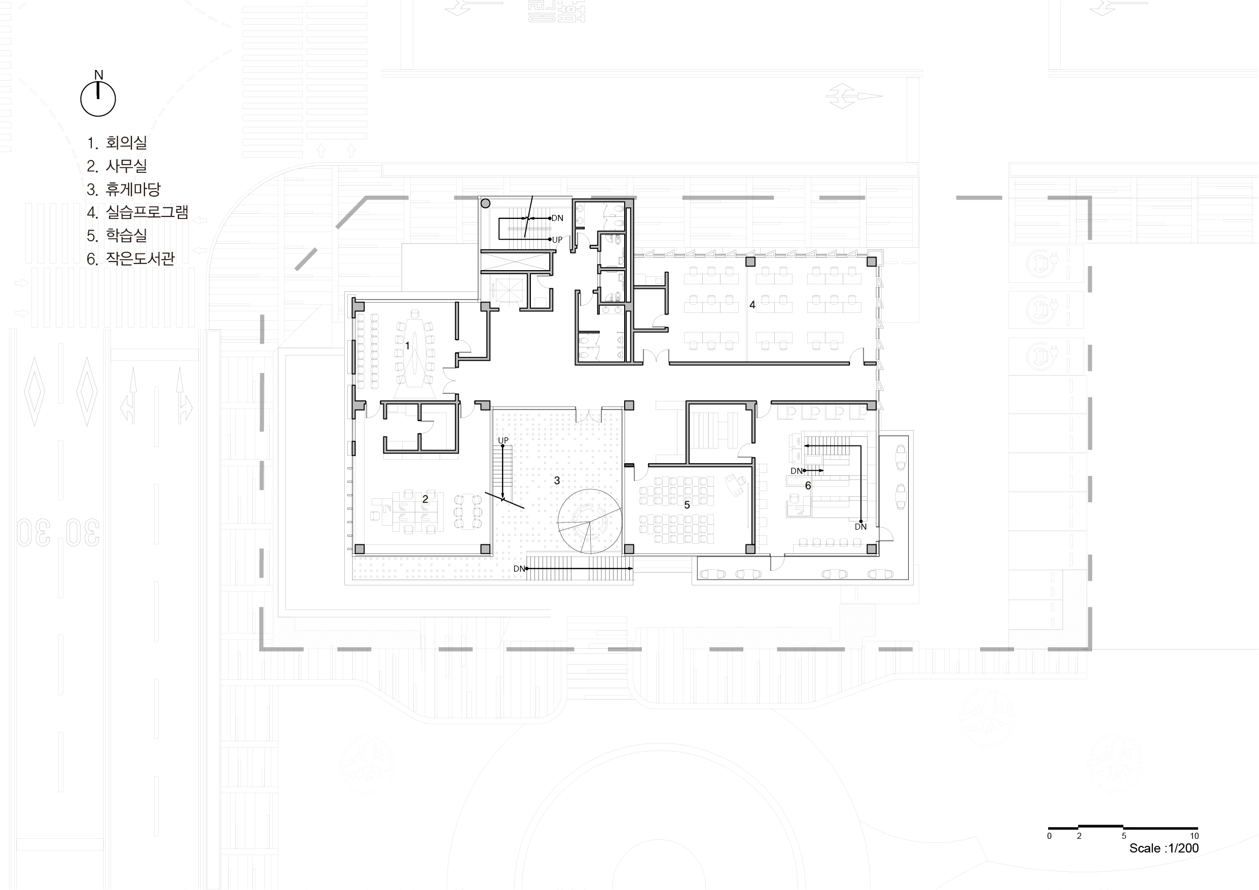
진해 동부권 생활문화센터 (당선)
용도
공공업무시설, 근린생활시설
대지위치
창원시 진해구 용원동
대지면적
1,631.90 ㎡
연면적
2,212.82 ㎡
구조
철근콘크리트조, 철골
규모
지상 4층 / 지하 1층
건물높이
19.10 M