본문 바로가기
주메뉴 바로가기
주메뉴
ABOUT
WORKS
NEWS
메뉴
닫기
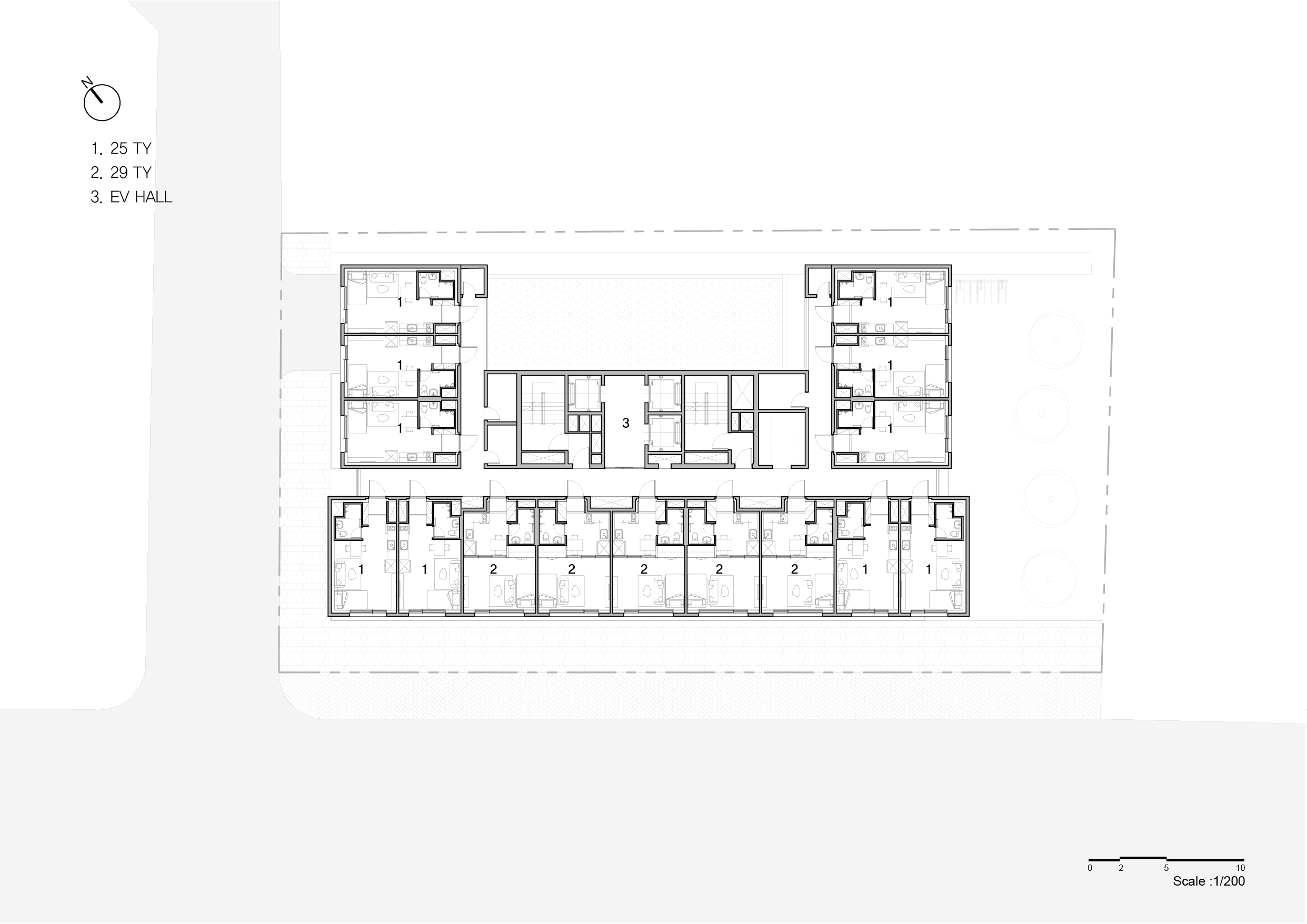
도선동 LH 민간 신축 사업
용도
업무시설(오피스텔), 근린생활시설
대지위치
서울 성동구 도선동
대지면적
1,494.20 ㎡
연면적
20,547.95 ㎡
구조
철근콘크리트조, 철골
규모
지상 24층 / 지하 5층
건물높이
82.00 M